FRITZ COFFEE JANGCHUNG (2025)
TEAMVIRALS reinterpreted the structure and context of Hanok located in the heart of downtown Seoul to design the FRITZ Jangchung branch. Centered around a courtyard offering a momentary respite from the city's fast-paced daily life, it was planned to seamlessly integrate FRITZ-like sensibilities while respecting the existing space’s characteristics.| CLIENT | FRITZ COFFEE COMPANY |
| INVOLVEMENT | FURNITURE, INTERIOR DESIGN |
| PHOTOGRAPHS | FRITZ COFFEE COMPANY |
| DESIGN TEAM | BYEONGWOOK NOH |
| HEEMIN BOO | |
| HYEONGWOO PARK | |
| HYEONJUN HONG | |
| HYEYOUNG LEE | |
| JIHYEON HWANG | |
| SEOKBYUNG JUNG | |
| SEUNGJI MUN |
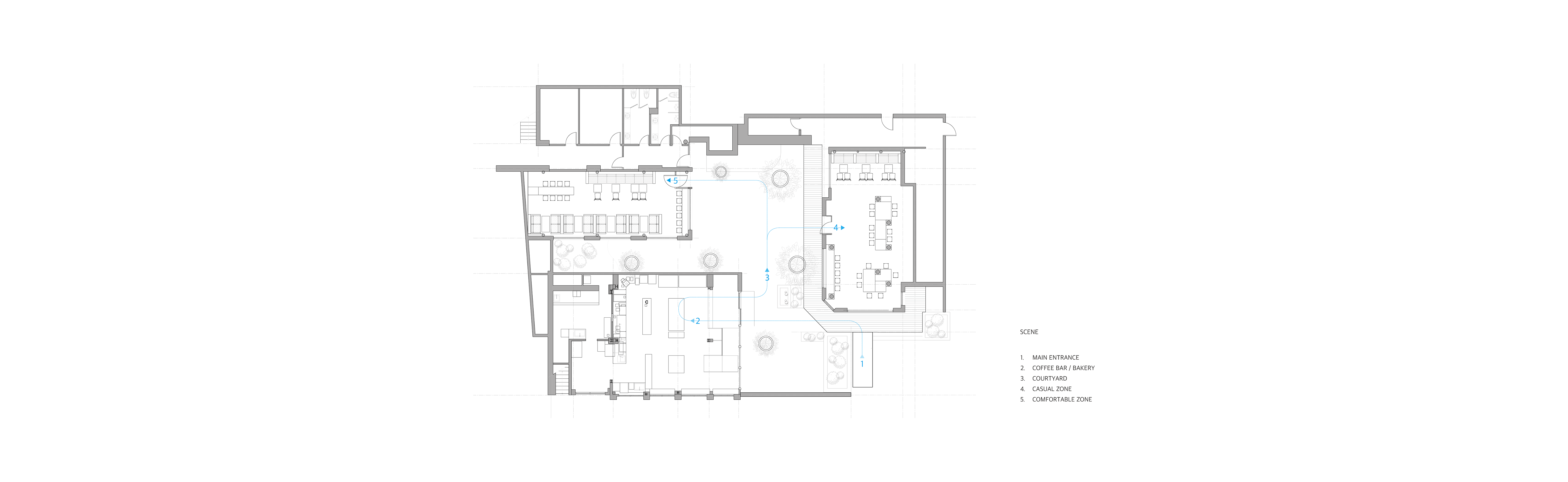
TEAMVIRALS reimagined an hanok with a FRITZ's own sensibility, reconfiguring the space to organically connect three separate buildings around a central courtyard. By adjusting the location of the existing road-facing entrance, the central courtyard becomes visible upon entry, allowing visitors to naturally encounter diverse scenes.
팀바이럴스는 도심 속 한옥을 프릳츠만의 감각으로 재해석하며, 분리된 3개의 동이 중정을 중심으로 유기적으로 연결되도록 공간을 재구성하였습니다.도로를 접해있던 기존 출입구의 위치를 조정해, 진입 시 중정이 먼저 보이도록 구성함으로써 다양한 장면을 자연스럽게 마주할 수 있도록 하였습니다.
We aimed this courtyard and Hanok within the city's complex flow, as a shelter within Seoul—a space where diverse people could pause and catch their breath. To achieve this, we guided the main entry route through the courtyard, creating a natural flow from the exterior. The three separate buildings were unified through a consistent design language, establishing a seamless connection between interior and exterior spaces.
도시의 복잡한 흐름속에 존재하는 중정과 한옥에서 다양한 사람들이 잠시 머물러 숨을 고를 수 있는, 서울 속의 쉼터 같은 공간으로 구현하고 싶었습니다. 이에 중정을 메인 진입로로 설정하여 외부로부터 자연스러운 흐름을 유도하였습니다. 분리된 세 개의 동은 하나의 디자인 언어를 공유하며, 내외부 공간을 자연스럽게 연결합니다.
FRITZ shows a way of respecting Korean history while expressing its distinctive sensibility. By carefully balancing vintage elements and craftsmanship, it creates a subtle yet meaningful dialogue between tradition and contemporary design.
프릳츠는 한국적 히스토리를 존중하면서도 프릳츠만의 감각을 드러내는 방식을 보여줍니다. ‘빈티지 + 장인정신’이라는 균형을 통해 전통과 동시대적 디자인 사이의 미묘한 긴장과 조화를 만들어냅니다.
“Let's support, layer, and bring it in.”
We sought to emphasize FRITZ' unique, witty approach born from the convergence of diverse characteristics and tastes. We focused on reinterpreting the existing method—where various actions naturally occurring in daily life coexist and fill a space—through our perspective. By adding new sensibilities on top of the old, we reveal
“괴고, 덧대고, 가져오자.”
우리는 서로 다른 특성과 취향이 모여 만들어내는 프릳츠만의 재치 있는 방식을 강조하고자 했습니다. 생활 속에서 자연스럽게 이루어지는 다양한 행위들이 공존하며 공간을 채우는 기존 방식을 우리의 관점으로 재해석하고, 낡은 것 위에 새로운 감각을 더함으로써 과거와 현재가 공존하는 프릳츠식 재구성의 미학을 드러내는 데 초점을 두었습니다.
While maintaining the existing space's tone, contrasting colors were used on newly added elements to create visual focal points. The furniture, reconfigured to match the unique atmosphere of FRITZ, harmonizes naturally with the existing space, creating a warm ambiance.
기존 공간의 톤을 유지하면서, 새로 덧대어지는 요소에는 대비되는 컬러를 사용하여 시각적인 포인트를 주었습니다. 프릳츠만의 분위기에 맞춰 재구성한 가구들은 기존 공간과 자연스러운 조화를 이루며 따뜻한 분위기를 연출합니다.











